Trong quá trình xây dựng, bản vẽ luôn đóng vai trò là “kim chỉ nam” để thi công chính xác và hiệu quả. Đặc biệt, với mô hình nhà tiền chế, yếu tố bản vẽ lại càng quan trọng bởi nó ảnh hưởng trực tiếp đến độ an toàn, chi phí cũng như tiến độ. Một bản vẽ nhà thép tiền chế chuẩn mực sẽ giúp chủ đầu tư kiểm soát toàn bộ công trình, từ khâu thiết kế, sản xuất cấu kiện đến lắp dựng thực tế. Cùng Trường Phát Building tìm hiểu trong bài viết này nhé!
Tổng quan về bản vẽ nhà thép tiền chế
Khi nhắc đến nhà tiền chế, nhiều người thường nghĩ ngay đến sự nhanh chóng và tiết kiệm. Tuy nhiên, để có được hiệu quả đó, bản vẽ chính là nền tảng đầu tiên cần hoàn thiện.
Khái niệm và đặc điểm của bản vẽ nhà thép tiền chế
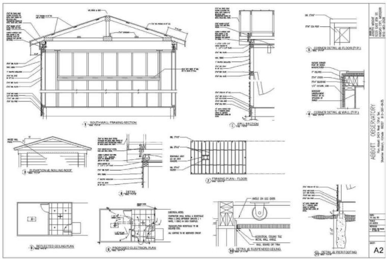
Bản vẽ nhà thép tiền chế là tập hợp các bản thiết kế chi tiết thể hiện toàn bộ kết cấu công trình. Nó bao gồm mặt bằng, mặt cắt, mặt đứng, bản vẽ cấu kiện (kèo, cột, dầm, xà gồ, bulong) cùng với các chi tiết liên kết. Điểm đặc trưng của bản vẽ loại này là độ chính xác cao, thể hiện rõ từng bước từ gia công cấu kiện đến thi công lắp dựng ngoài công trường.

Tại sao bản vẽ nhà thép tiền chế lại quan trọng?
Một công trình tiền chế không thể tiến hành nếu thiếu bản vẽ. Đây không chỉ là tài liệu kỹ thuật mà còn là công cụ kiểm soát ngân sách, tiến độ và chất lượng. Bản vẽ chính xác giúp hạn chế sai sót, tránh lãng phí vật tư và giảm chi phí phát sinh. Ngoài ra, nó còn đảm bảo tính đồng bộ giữa các bộ phận, từ sản xuất trong nhà máy đến thi công ngoài công trường.
Các loại bản vẽ nhà thép tiền chế phổ biến
Bản vẽ nhà tiền chế không phải chỉ có một loại duy nhất. Tùy vào giai đoạn thiết kế và thi công, bản vẽ sẽ được triển khai với nhiều mục đích khác nhau.
Bản vẽ thiết kế sơ bộ
Ở giai đoạn đầu, bản vẽ thiết kế sơ bộ đóng vai trò định hướng quan trọng cho toàn bộ công trình. Đây là bước giúp chủ đầu tư hình dung tổng quan trước khi đầu tư chi phí lớn.

Nội dung thể hiện trong bản vẽ sơ bộ thường bao gồm:
- Mặt bằng tổng thể: Thể hiện rõ diện tích đất, cách bố trí các hạng mục công trình.
- Kích thước cơ bản: Chiều dài, chiều rộng, chiều cao công trình để xác định khối tích và quy mô.
- Phối cảnh kiến trúc: Hình ảnh minh họa giúp chủ đầu tư dễ dàng hình dung không gian tổng quan.
- Công năng sử dụng: Phân chia khu vực nhà xưởng, văn phòng, kho bãi, khu vệ sinh…
- Khả năng mở rộng: Đề xuất phương án nếu chủ đầu tư muốn mở rộng trong tương lai.
Nhờ có bản vẽ sơ bộ, cả kiến trúc sư, kỹ sư và chủ đầu tư đều thống nhất được ý tưởng ngay từ đầu, tránh những thay đổi tốn kém về sau.
Xem thêm: Giải pháp trọn gói: Tư vấn – Thiết kế – Thi công nhà thép tiền chế
Bản vẽ kỹ thuật chi tiết
Sau khi thống nhất ý tưởng từ bản vẽ sơ bộ, bước tiếp theo là triển khai bản vẽ kỹ thuật chi tiết. Đây là phần quan trọng nhất, được ví như “xương sống” của toàn bộ công trình.

Bản vẽ kỹ thuật chi tiết thường bao gồm:
- Móng công trình: Kích thước, độ sâu móng, loại móng (móng băng, móng cọc, móng đơn).
- Khung thép: Cột, dầm, kèo, giằng được thể hiện rõ ràng về kích thước, vật liệu.
- Hệ mái và xà gồ: Cách bố trí, khoảng cách, vật liệu sử dụng để đảm bảo chịu lực.
- Bulong, liên kết hàn: Vị trí, kích thước, lực chịu tải để đảm bảo an toàn.
- Chi tiết kiến trúc: Cửa đi, cửa sổ, hệ thống thông gió, cầu thang, lan can (nếu có).
Đây là cơ sở quan trọng để sản xuất cấu kiện tại nhà máy, đồng thời giúp đội ngũ thi công lắp dựng chính xác, hạn chế sai sót.
Bản vẽ thi công và lắp dựng
Bản vẽ thi công và lắp dựng là tài liệu không thể thiếu trong giai đoạn triển khai công trình thực tế. Nó cung cấp hướng dẫn cụ thể, đảm bảo tiến độ và an toàn.
Nội dung trong bản vẽ thi công thường bao gồm:
- Trình tự lắp dựng: Xác định rõ bước nào làm trước, bước nào làm sau để tiết kiệm thời gian.
- Vị trí mối nối: Các điểm liên kết bulong, hàn, chốt neo… được đánh dấu chi tiết.
- Phương pháp gia cố: Đưa ra phương án chống đỡ tạm thời trong quá trình dựng khung.
- Sơ đồ lắp dựng: Hình ảnh minh họa để thợ dễ dàng thao tác.
- Yêu cầu an toàn: Chú ý về trang bị bảo hộ, kiểm tra bulong, neo chống gió.
Nhờ bản vẽ thi công, đội ngũ ngoài công trường có thể triển khai nhanh chóng, giảm thiểu rủi ro và đảm bảo công trình hoàn thiện đúng tiến độ.
Quy trình triển khai bản vẽ nhà thép tiền chế
Để có bản vẽ chất lượng, quá trình triển khai phải trải qua nhiều bước từ khảo sát đến hoàn thiện hồ sơ.
Khảo sát hiện trạng và nhu cầu sử dụng
Bước đầu tiên là khảo sát địa điểm thi công. Các yếu tố như diện tích, đặc điểm nền đất, tải trọng gió, mưa, nhu cầu công năng đều được ghi nhận. Kết quả khảo sát sẽ ảnh hưởng trực tiếp đến phương án thiết kế khung thép.
Lên phương án thiết kế sơ bộ và phê duyệt
Dựa trên khảo sát, kỹ sư sẽ lên bản vẽ sơ bộ bao gồm mặt bằng tổng thể, kiến trúc công trình, chiều cao, kết cấu chính. Chủ đầu tư sẽ xem xét, góp ý và phê duyệt trước khi triển khai bản vẽ kỹ thuật chi tiết.

Triển khai bản vẽ kỹ thuật và hồ sơ thi công
Sau khi phương án sơ bộ được chấp thuận, đơn vị thiết kế sẽ thực hiện bản vẽ kỹ thuật chi tiết (shop-drawing). Đây là bản vẽ được dùng để sản xuất cấu kiện tại nhà máy và làm cơ sở cho bản vẽ thi công lắp dựng. Cuối cùng, hồ sơ thi công sẽ được bàn giao để công trình chính thức triển khai.
Xem thêm: Thời gian thi công nhà lắp ghép dân dụng là bao lâu?
Ưu điểm khi sử dụng bản vẽ chuẩn trong thi công
Một bản vẽ chuẩn xác không chỉ mang lại sự thuận lợi cho thi công mà còn giúp công trình đạt được hiệu quả toàn diện.
Đảm bảo chất lượng và độ bền công trình
Nhà thép tiền chế thường được xây dựng với quy mô lớn, yêu cầu khả năng chịu lực cao. Bản vẽ chuẩn giúp từng chi tiết được sản xuất và lắp đặt chính xác, tăng tuổi thọ công trình, hạn chế rủi ro sập đổ.
Tối ưu chi phí và rút ngắn tiến độ
Với bản vẽ rõ ràng, chủ đầu tư biết chính xác cần bao nhiêu vật liệu, nhân công, từ đó tránh lãng phí. Ngoài ra, việc lắp dựng cũng diễn ra nhanh chóng, giúp rút ngắn thời gian thi công và đưa công trình vào sử dụng sớm.
Thuận lợi trong bảo trì và nâng cấp sau này
Một điểm lợi khác là bản vẽ sẽ được lưu trữ để phục vụ công tác bảo trì, sửa chữa hay mở rộng sau này. Khi cần nâng cấp, kỹ sư chỉ cần tham chiếu bản vẽ cũ để đưa ra phương án phù hợp, tiết kiệm chi phí và thời gian.
Những lưu ý quan trọng khi chọn đơn vị thiết kế bản vẽ nhà thép tiền chế
Để có một bản vẽ đạt chuẩn, chủ đầu tư cần chọn đúng đơn vị thiết kế uy tín và có năng lực.
Kinh nghiệm và năng lực chuyên môn
Một đơn vị nhiều kinh nghiệm sẽ đưa ra phương án tối ưu, phù hợp với nhu cầu sử dụng thực tế. Đội ngũ kỹ sư có chuyên môn cao sẽ đảm bảo bản vẽ đạt chuẩn kỹ thuật và an toàn.
Minh bạch chi phí và quy trình làm việc
Khi làm việc với đơn vị uy tín, chủ đầu tư sẽ nhận được báo giá rõ ràng, quy trình thiết kế minh bạch. Điều này giúp dễ dàng kiểm soát ngân sách và tiến độ dự án.
Bảo hành và hỗ trợ kỹ thuật sau thiết kế
Ngoài việc bàn giao bản vẽ, nhiều đơn vị còn hỗ trợ kỹ thuật trong quá trình thi công. Đây là dịch vụ quan trọng giúp xử lý nhanh các vấn đề phát sinh và đảm bảo hiệu quả công trình lâu dài.
Có thể nói, bản vẽ nhà thép tiền chế chính là bước khởi đầu quan trọng quyết định sự thành công của công trình. Một bản vẽ chuẩn sẽ giúp đảm bảo chất lượng, tiết kiệm chi phí và tối ưu tiến độ thi công. Chính vì vậy, chủ đầu tư nên lựa chọn đơn vị thiết kế uy tín, chuyên nghiệp để sở hữu những bản vẽ chính xác và hiệu quả. Đây chính là chìa khóa để công trình nhà thép tiền chế đạt được giá trị bền vững theo thời gian.
